Obras en los vestuarios de la Piscina Municipal
31 octubre 2018
- Administración
- Urbanismo
Comienzan las obras de adecuación de los vestuarios de la Piscina Municipal. Las obras se financiarán como inversión financieramente sostenible con cargo al superávit presupuestario del año 2017 del Ayuntamiento de Ribaforada, y han sido adjudicadas por un importe de 79.034,5 euros iva excluido a la empresa” CMP Martinez Rodríguez” con un plazo de ejecución de 10 semanas.
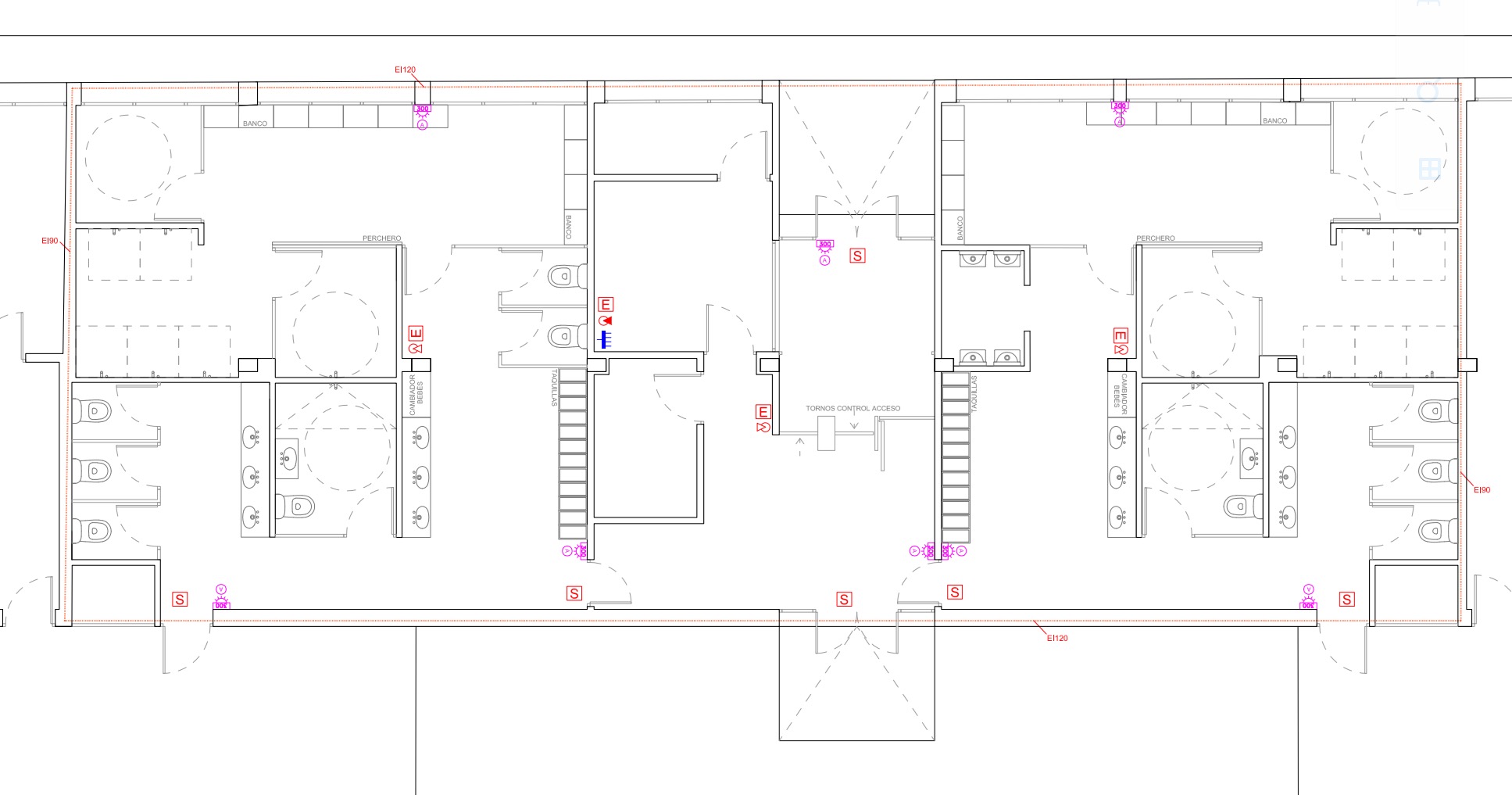
La rehabilitación integral de los accesos, vestuarios, duchas y aseos de la Piscina Municipal de Ribaforada se han hecho según lo indicado en el Decreto Foral que establece las condiciones higiénico-sanitarias y de seguridad de las Piscinas de uso común.
Según se establece en la misma, en función de la lámina de agua, cada uno de los vestuarios, debe de disponer de un vestuario individual, una ducha individual, seis inodoros, seis lavabos, un vestuario colectivo (sustituyendo a once individuales) y una ducha colectiva (sustituyendo a cinco individuales). Todas estas instalaciones se ubicarán en el espacio actual junto con el acceso a las Piscinas Municipales, la taquilla y el botiquín, que también se reformarán.
Las obras consistirán en el derribo de la tabiquería actual, compartimentando los nuevos espacios en función de las necesidades mediante tabiquería y paneles fenólicos. El cambio de las carpinterías actuales y las instalaciones de fontanería y electricidad. Los vestuarios contarán con agua caliente y extracción.
Además las obras también incluyen la eliminación de barreras arquitectónicas y accesibilidad universal, así como la colocación de un nuevo sistema de acceso mediante torno para facilitar la gestión de entrada a la instalación.
Con estas obras se consigue una remodelación de unos servicios muy utilizados por los vecinos y vecinas de la localidad como son las Piscinas Municipales.


